3-geschossiges Gebäude mit Staffelgeschoß und Pultdach, nord-süd-orientiert, nicht unterkellert.
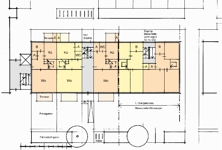
Erschließung über zwei geschlossene Treppenhäuser, die im EG und 2.OG Zugang zu je zwei Maisonettewohnungen bieten. Zusätzlich Anbindung an Gebäude Typ A über gemeinsames Treppenhaus. Gestapelte Reihenhäuser als Maisonettewohnungen, je 4 bzw. 5 Zimmer, gesamt 10 Wohneinheiten.
Zugang vom Hauptweg, von Süden, zusätzlicher Hofzugang nach Norden. Direktzugang zu den EG/1.OG Reihenhäusern  möglich. Ebenerdige Fahrradabstellanlagen am Hauptweg und im Wohnhof.

Leichtes Anheben des Erdgeschoßes auf ca. + 50cm. Behindertengerechte Erschließung des Erdgeschosses.
Private Südgärten der EG/1.OG-Maisonette-wohnungen. Dachterrasse nach Süden für die Obergeschoß-Maisonettewohnungen.
Einfacher Gebäudekörper zur energetischen Optimierung. Niedrigenergiebauweise.
Modulare Entwicklung von Grundrissen und Fassaden zur Kostenoptimierung. Statische Konstruktion ermöglicht flexible Grundrissgestaltung.

MASSTAB  1:250