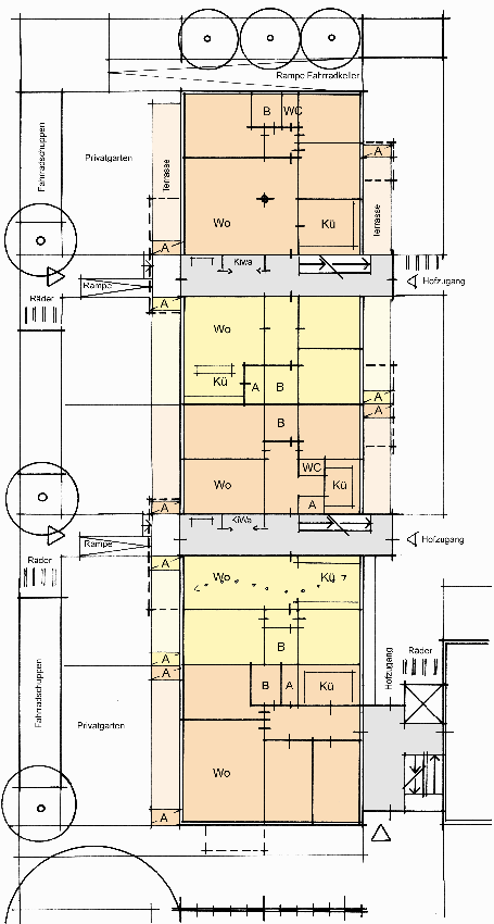
4-geschossiges Gebäude mit Pultdach, ost-west-orientiert, unterkellert.
Zwei geschlossene Treppenhäuser jeweils ausgebildet als Zweispänner. Zusätzlich Anbindung an Gebäude Typ C über
gemeinsames Treppenhaus. Geschoßwohnungen, je 3 bzw. 4 Zimmer, gesamt 19 Wohneinheiten (incl. einer 6-Zi. Maisonettewohnung)
Hauptzugang von Westen, zusätzlicher Hofzugang nach Osten. Sitzplatz und Kinderwagenabstellmöglichkeit im Eingangsbereich. Ebenerdige Fahrradabstellanlagen und gemeinsamer, von außen über eine Rampe angebundener Fahrradkeller.
Privatgärten der EG-Wohnungen. Angebot von Balkonen für die Obergeschoßwohnungen nach Westen und Osten.
Einfacher Gebäudekörper zur energetischen Optimierung. Niedrig-energiebauweise.
Balkone und Außen-abstellräume als vorgesetzte Konstruktionen.
Leichtes Anheben des Erdgeschoßes auf ca.
+ 50cm. Behindertengerechte Erschließung der Erdgeschoßwohnungen.
Modulare Entwicklung von Grundrissen und Fassaden zur Kostenoptimierung. Statische Konstruktion ermöglicht
flexible Grundrissgestatung.

MASSTAB  1:250